Для Отелей и Гостиниц

Комплексные решения для гостиничного бизнеса. Быстрое возведение отелей с минимальными нарушениями работы. Модульные номера для загородных отелей и курортов

ГОРИЗОНТ модульДОМ:
Технология уверенного строительства

Модульные отели нового поколения — когда каждый день на счету

Традиционная стройка — это лотерея со сроками и бюджетом.
ГОРИЗОНТ модульДОМ предлагает другой путь: заводская точность, проверенная система и стальная гарантия результата на каждом шаге — от проектирования до сдачи объекта

Система, которая исключает форс-мажоры

Мы превратили строительство отелей в отлаженный производственный процесс.
Наш метод — это промышленная логика вместо строительного хаоса:

  • Полный цикл под контролем — проектируем, производим, монтируем, сдаём
  • Темп без потери качества — реализация проекта в рекордные сроки
  • Прозрачность процесса — знаете точные даты и цифры еще до старта
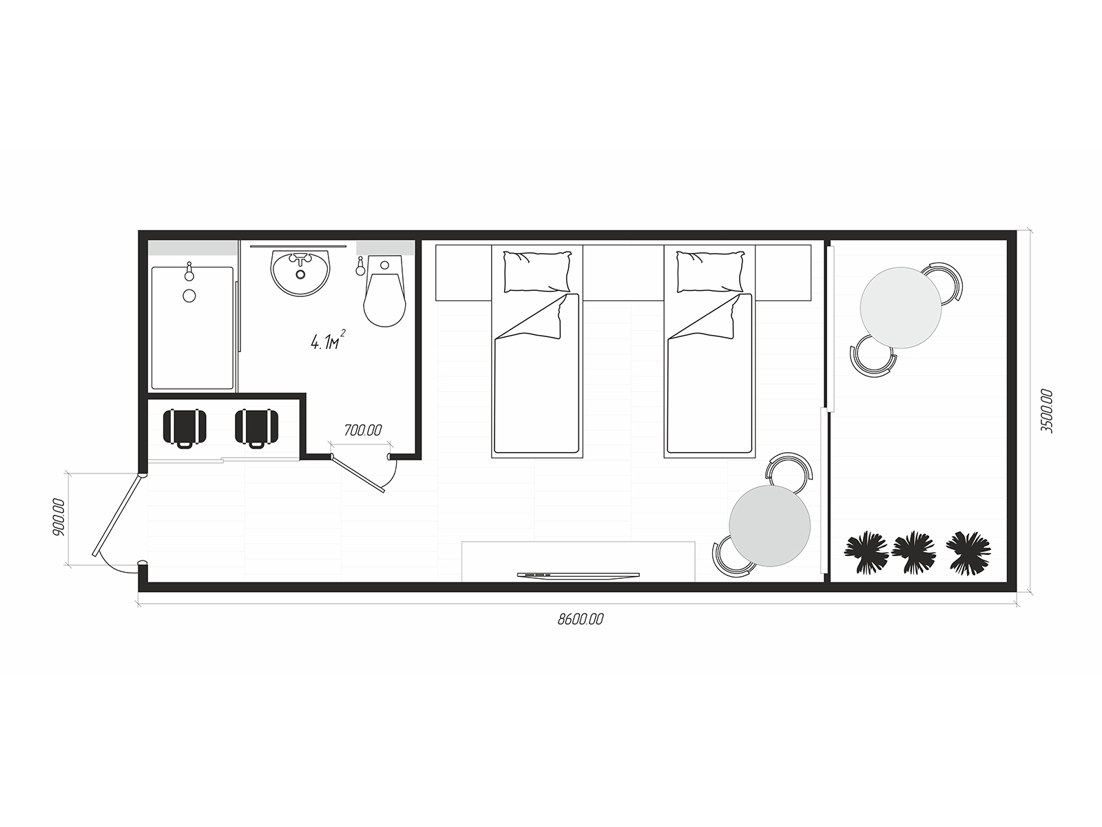
Модуль Тип 1а

Модуль Тип 1а

120 modular rooms delivered in 8 months for a luxury coastal resort in California

60% Faster Build LEED Certified Luxury Finishes
Malibu, California
Case Study
MetroStay Downtown

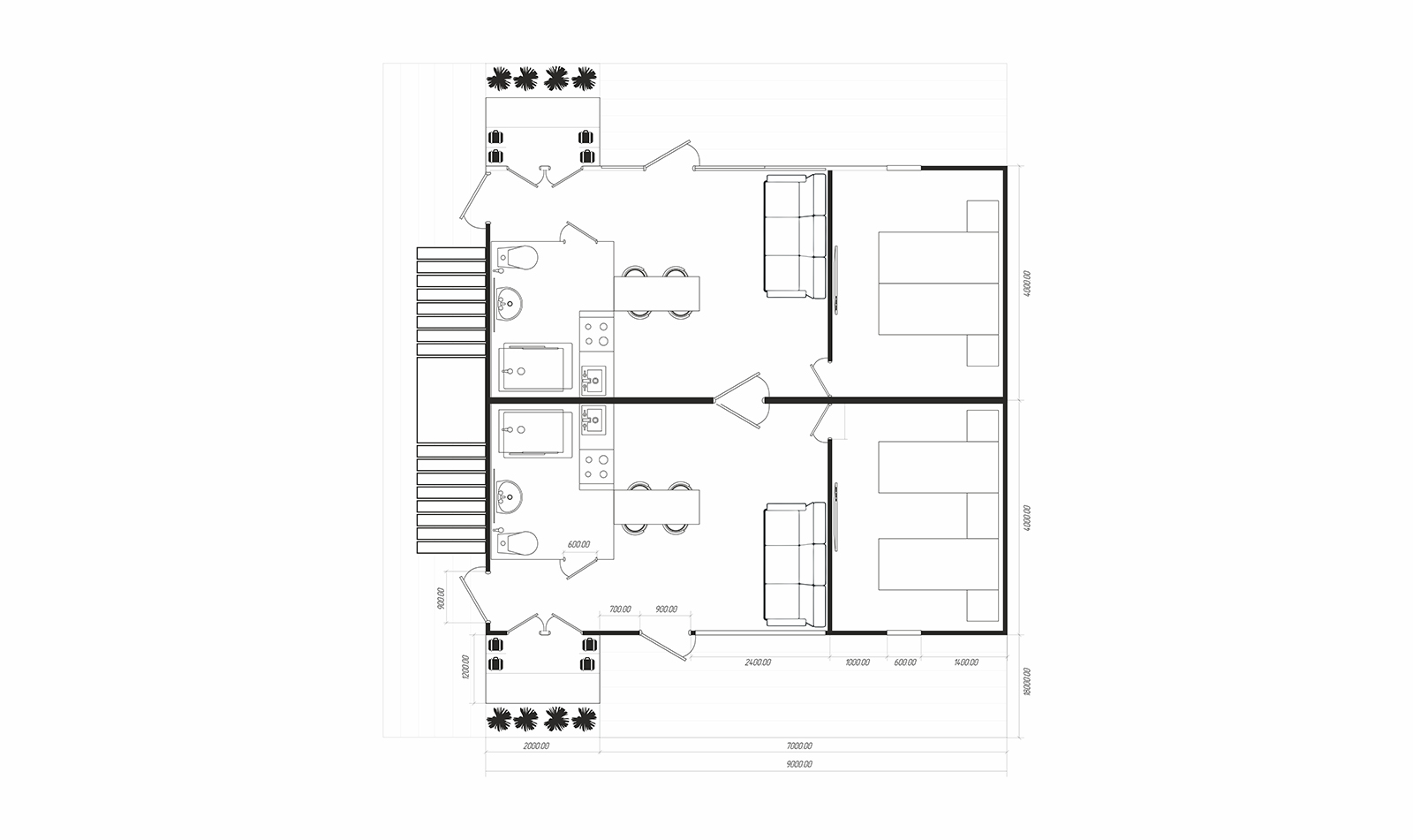
Модуль Тип 1b

80-room boutique hotel constructed in just 6 months in a busy metropolitan area

Fast-Track Urban Integration Boutique Design
Chicago, Illinois
Case Study
Alpine Retreat Cabins

Модуль Тип 4 single

50 luxury cabin modules for a ski resort, installed during off-season in 5 months

All-Season Sustainable Materials Luxury Cabins
Aspen, Colorado
Case Study
Alpine Retreat Cabins

Модуль Тип 4 duplex

50 luxury cabin modules for a ski resort, installed during off-season in 5 months

All-Season Sustainable Materials Luxury Cabins
Aspen, Colorado
Case Study
Alpine Retreat Cabins

Модуль Тип 4 duplex

50 luxury cabin modules for a ski resort, installed during off-season in 5 months

All-Season Sustainable Materials Luxury Cabins
Aspen, Colorado
Case Study
Alpine Retreat Cabins

Модуль Тип 4 duplex

50 luxury cabin modules for a ski resort, installed during off-season in 5 months

All-Season Sustainable Materials Luxury Cabins
Aspen, Colorado
Case Study
Alpine Retreat Cabins

Модуль Тип 4 duplex

50 luxury cabin modules for a ski resort, installed during off-season in 5 months

All-Season Sustainable Materials Luxury Cabins
Aspen, Colorado
Case Study
Alpine Retreat Cabins

Модуль Тип 4 duplex

50 luxury cabin modules for a ski resort, installed during off-season in 5 months

All-Season Sustainable Materials Luxury Cabins
Aspen, Colorado
Case Study
Alpine Retreat Cabins

Модуль Тип 4 duplex

50 luxury cabin modules for a ski resort, installed during off-season in 5 months

All-Season Sustainable Materials Luxury Cabins
Aspen, Colorado
Case Study
Alpine Retreat Cabins

Модуль Тип 4 duplex

50 luxury cabin modules for a ski resort, installed during off-season in 5 months

All-Season Sustainable Materials Luxury Cabins
Aspen, Colorado
Case Study
Alpine Retreat Cabins

Модуль Тип 4 duplex

50 luxury cabin modules for a ski resort, installed during off-season in 5 months

All-Season Sustainable Materials Luxury Cabins
Aspen, Colorado
Case Study
Alpine Retreat Cabins

Модуль Тип 4 duplex

50 luxury cabin modules for a ski resort, installed during off-season in 5 months

All-Season Sustainable Materials Luxury Cabins
Aspen, Colorado
Case Study
Alpine Retreat Cabins

Модуль Тип 4 duplex

50 luxury cabin modules for a ski resort, installed during off-season in 5 months

All-Season Sustainable Materials Luxury Cabins
Aspen, Colorado
Case Study
Alpine Retreat Cabins

Модуль Тип 4 duplex

50 luxury cabin modules for a ski resort, installed during off-season in 5 months

All-Season Sustainable Materials Luxury Cabins
Aspen, Colorado
Case Study
Alpine Retreat Cabins

Модуль Тип 4 duplex

50 luxury cabin modules for a ski resort, installed during off-season in 5 months

All-Season Sustainable Materials Luxury Cabins
Aspen, Colorado
Case Study
Alpine Retreat Cabins

Модуль Тип 4 duplex

50 luxury cabin modules for a ski resort, installed during off-season in 5 months

All-Season Sustainable Materials Luxury Cabins
Aspen, Colorado
Case Study
Alpine Retreat Cabins

Модуль Тип 4 duplex

50 luxury cabin modules for a ski resort, installed during off-season in 5 months

All-Season Sustainable Materials Luxury Cabins
Aspen, Colorado
Case Study
Alpine Retreat Cabins

Модуль Тип 4 duplex

50 luxury cabin modules for a ski resort, installed during off-season in 5 months

All-Season Sustainable Materials Luxury Cabins
Aspen, Colorado
Case Study
Alpine Retreat Cabins

Модуль Тип 4 duplex

50 luxury cabin modules for a ski resort, installed during off-season in 5 months

All-Season Sustainable Materials Luxury Cabins
Aspen, Colorado
Case Study
Alpine Retreat Cabins

Модуль Тип 4 duplex

50 luxury cabin modules for a ski resort, installed during off-season in 5 months

All-Season Sustainable Materials Luxury Cabins
Aspen, Colorado
Case Study
Alpine Retreat Cabins

Модуль Тип 4 duplex

50 luxury cabin modules for a ski resort, installed during off-season in 5 months

All-Season Sustainable Materials Luxury Cabins
Aspen, Colorado
Case Study
Alpine Retreat Cabins

Модуль Тип 4 duplex

50 luxury cabin modules for a ski resort, installed during off-season in 5 months

All-Season Sustainable Materials Luxury Cabins
Aspen, Colorado
Case Study

Ваше конкурентное преимущество в цифрах

Для девелоперов и управляющих компаний мы создали решение, которое реально экономит время и деньги.
Технологичное производство на базе усиленного сварного каркаса обеспечивает:

Запуск объекта на месяцы раньше конкурентов

Снижение операционных расходов на этапе строительства

Стабильное качество благодаря заводскому производству

Полная прослеживаемость каждого этапа

60%
Быстрее строительства
20%
Экономия бюджета
100%
Контроль качества
0
Погодных задержек

Быстрее. Эффективность по Времени. Экономия времени

Параллельные процессы строительства сокращают сроки проекта до 60% по сравнению с традиционными методами. Значительно сократите сроки строительства благодаря нашим технологическим процессам.

Предсказуемость Стоимости. Предсказуемая Стоимость. Предсказуемость Затрат

Фиксированная цена без сюрпризов. Экономьте до 20% по сравнению с традиционными методами. Фиксированные цены с меньшим количеством изменений и непредвиденных расходов. Экономьте 15–20% от общей стоимости проекта

Контроль Качества

Контролируемая заводская среда обеспечивает стабильное качество, точность и соответствие спецификациям. Контролируемая на заводе среда обеспечивает стабильное качество, точность и соблюдение спецификаций. Экологичные и безопасные материалы. Используем только биозащитные + противопожарные материалы, такие как Пенополиуретан - закрытая ячейка. Токсичен для грызунов и совершенно безопасен для человека и домашних животных. Все сертификаты в наличии.

Независимость от Погоды. Независимость от погодных условий

Заводское строительство в помещении продолжается независимо от погоды, устраняя сезонные задержки. Строительство на крытом заводе продолжается независимо от погодных условий, что исключает сезонные задержки.

Уникальность

· Производство модульных домов на основе неубиваемого стального каркаса. Строгое соблюдение геометрических форм при производстве и сборке гарантирует прочность и жесткость соединений между модулями исключая деформации каркаса при любых нагрузках. Полное отсутствие мостиков холода благодаря уникальной конструкции

· Эффект термоса. Полная герметичность и использование влагостойких материалов гарантирует защиту от влаги, плесени и грызунов. В то же самое время, приточная вентиляция насыщает помещение свежим воздухом

· Премиальное качество. Элегантный дизайн интерьера. Высота потолков 3м. Система контроля Умный Дом. Эстетичное освещение, натяжные потолки, обогрев пола, надежная сантехника. Легкий доступ к коммуникациям для проведения профилактических и ремонтных работ

· ТОЛЬКО У НАС! Уникальная система позволяющая быстро и эффективно "наращивать" ваши модули и номерной фонд в высокий сезон, и сокращать в низкий сезон разумно экономя ваши деньги.

Минимальные Нарушения на Площадке. Строительные работы без помех вашему бизнесу.

Более быстрая сборка на месте снижает шум, движение транспорта и нарушения для окружающих территорий. Быстрая сборка на месте снижает уровень шума, движение транспорта и неудобства для окружающих территорий. Сокращение отходов материалов, оптимизированное использование энергии

Ключевые Преимущества Нашего Процесса
Наш Оптимизированный Процесс
Наш Модульный Процесс

Откройте для себя наш системный подход к модульному строительству отелей, который обеспечивает качество, эффективность и предсказуемость от концепции до завершения

От концепции до здачи под ключ — наш оптимизированный подход гарантирует эффективность, скорость и качество

Оптимизированный подход гарантирует эффективность и качество — от концепции до реализации

Наш системный подход обеспечивает измеримые преимущества по сравнению с традиционными методами строительства

Наш технологичный подход к строительству модульных коммерчесских объектов имеет непревзойдённые преимущества для застройщиков и операторов

Шаг 1

Консультация и Оценка Осуществимости

Мы работаем с вашей командой, чтобы понять ваши потребности и создать индивидуальное решение, соответствующее вашим задачам

Мы работаем с вашей командой, чтобы понять требования и создать индивидуальные модульные проекты, соответствующие вашим потребностям

Мы начинаем с понимания вашего видения, бюджета и сроков. Наша команда проводит тщательное исследование осуществимости, чтобы убедиться, что модульное строительство подходит для вашего проекта

  • Оценка и анализ площадки
  • Оценка бюджета и сроков
  • Предварительные концепции дизайна
1
Consultation Meeting

"Исследование осуществимости дало нам уверенность, что модульное строительство — правильный выбор, сэкономив нам 6 месяцев по срокам"

Design & Engineering

"3D визуализация дизайна позволила нам внести изменения до начала строительства"

2
Шаг 2

Дизайн и Инженерия

Наши архитекторы и инженеры создают детальные модульные проекты, соответствующие вашим требованиям, одновременно оптимизируя их для заводского строительства и сборки на месте

  • Индивидуальный архитектурный дизайн
  • Структурная инженерия и согласования
  • 3D визуализация и виртуальные туры
Шаг 3

Заводское Строительство

Наши модули производятся с учетом строгих технологических требований, обеспечивающих максимальное качество и стабильность независимо от погоды

Модули изготавливаются с высокой точностью в контролируемых условиях нашего завода, что гарантирует качество и стабильность независимо от погодных условий

Модули строятся в нашей контролируемой заводской среде, обеспечивая стабильное качество независимо от погодных условий

Это параллельное строительство значительно экономит время

  • Одновременная подготовка площадки и строительство модулей
  • Контроль качества на каждом этапе
  • Внутренняя отделка устанавливается на заводе
3
Factory Construction

"Заводская среда позволила добиться идеальной отделки, которая была бы невозможна на традиционной площадке"

Transport & Installation

"Монтаж был завершён всего за 3 недели с минимальным нарушением нашей текущей деятельности"

4
Шаг 4

Транспортировка и Монтаж

Готовые модули транспортируются и собираются на месте с минимальным нарушением работы вашего объекта. Эта быстрая установка минимизирует нарушения и позволяет вашему отелю начать работу быстрее

Готовые модули транспортируются и собираются на месте с минимальным нарушением работы вашего объекта

  • Стратегическое планирование транспортировки
  • Крановый монтаж модулей
  • Подключение коммуникаций и завершающие работы
Шаг 5

Ввод в Эксплуатацию и Сдача Объекта

Мы проводим тщательное тестирование и контроль качества перед передачей готового проекта

Наша команда обеспечивает обучение и поддержку для плавного перехода к эксплуатации

Перед сдачей готового отеля мы проводим тщательное тестирование и контроль качества

Наша команда обеспечивает обучение и поддержку для обеспечения плавного перехода к эксплуатации.

  • Тестирование систем и ввод в эксплуатацию
  • Финальные инспекции и сертификации
  • Обучение и поддержка эксплуатации
5
Completed Hotel

"Передача прошла гладко, и наш персонал был полностью обучен и готов принимать гостей немедленно"

Горизонт модульДОМ превращает строительные проекты
в предсказуемый бизнес-процесс.
От концепции до реализации — мы делаем модульное строительство простым,
быстрым и эффективным для вашего бизнеса.

Готовы начать ваш модульный проект?

Свяжитесь с нами сегодня, чтобы обсудить, как наш оптимизированный модульный процесс может принести пользу вашему следующему отельному проекту